Mieszkanie na sprzedaż Kraków, Podgórze, Piaski, Podedworze

2 pokoje
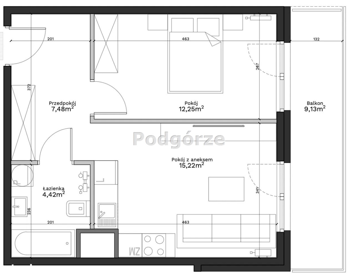
39.00 m²
14 743,59 zł/m2
1 piętro
POD-MS-37407
Oblicz ratę kredytu Powiadom o spadku ceny

575 000 zł

Mieszkanie na sprzedaż
Nowa oferta

Szczegóły oferty

Symbol oferty POD-MS-37407
Powierzchnia 39,00 m²
Powierzchnia balkonów/tarasów 9,00 m²
Liczba pokoi 2
Rodzaj budynku blok
Technologia budowlana mieszana
Opłaty w czynszu administracja, CO, fundusz remontowy, sprzątanie, Winda, woda ciepła, woda zimna, wywóz śmieci
Piętro 1
Liczba pięter w budynku 11
Stan lokalu deweloperski
Okna PCV
Instalacje nowe
Balkon jest
Rok budowy 2025
Woda ciepła - miejska
Ogrzewanie C.O. miejskie
Winda tak
Usytuowanie jednostronne
Pomieszczenia
Powierzchnia pokoi 15, 12 m2
Podłogi pokoi wylewka
Rodzaj kuchni aneks kuchenny - połączony z salonem
Podłoga kuchni wylewka
Typ łazienki razem z wc
Powierzchnia łazienki [m2] 4,42 m2
Glazura łazienki bez glazury
Podłoga łazienki wylewka
Filip Wawrzynek

Filip Wawrzynek

Dział Wsparcia Sprzedaży

Napisz wiadomość 65 Ofert

Opis nieruchomości

Zapraszam do zapoznania się z ofertą sprzedaży mieszkania dwupokojowego w nowym budynku przy ul Podedworze ( Piaski)

Mieszkanie:

- salon z aneksem kuchennym , sypialnia. łazienka z toaletą oraz przedpokój
- duży balkon (9m2)
- usytuowane na południowy- wschód
- możliwość dokupienia miejsca postojowego w cenie 30000 zł

Budynek i okolica:

- nowoczesny budynek z windą oddany pod koniec 2025 roku
- doskonałe połączenie z centrum miasta (tramwaj, autobus)
- ścieżki rowerowe
- parki i tereny zielone
- sklepy i punkty usługowe
- placówki edukacyjne

Polecam i zapraszam na prezentację!

Kalkulatory

Kalkulator kredytowy

Wysokość raty

PLN
%

Podobne oferty

Mieszkanie na sprzedaż

Kraków, Podgórze

3 pokoje 44 m2 15 000,00 zł/m2

Mieszkanie na sprzedaż

Kraków, Podgórze

1 pokoj 29 m2 15 482,76 zł/m2
Oferta specjalna

Mieszkanie na sprzedaż

Kraków, Podgórze

1 pokoj 29 m2 16 172,41 zł/m2
Oferta specjalna
Oferta specjalna

Mieszkanie na sprzedaż

Kraków, Podgórze

3 pokoje 46 m2 14 347,83 zł/m2
Oferta specjalna

Dział Wsparcia Sprzedaży

Proszę wprowadzić poprawne imię i nazwisko
Proszę wprowadzić poprawny numer telefonu
Proszę wprowadzić poprawny adres e-mail
Proszę zaznaczyć wymagane zgody
Rozwiąż równanie:
10 4
Niepoprawny wynik